《5G NR物理层技术详解:原理、模型和组件 》 —3.3.3 传输损耗测量
3.3.3 传输损耗测量
由传播效应引起接收信号强度的损耗是无线传播信道的最基本的和最重要的特征之一。本节给出许多来自真实蜂窝网络的测量示例以理解传输损耗,重点关注1~100 GHz范围内的频率依赖性。大部分测量基于全向垂直偶极天线,此种天线对所有频段具有相似的天线方向图。另外,在室外到室内测量中,在室外发射端使用垂直贴片天线或开放波导。在60 GHz频段进行测量时,氧气吸收量约为1.5 dB/100 m,在测量中,将对这种损耗进行补偿。目的是通过在整个频率范围内进行平滑插值/外推以方便建模,并根据需要,将氧气吸收添加到基准模型中。此外,所有测量的损耗以与自由空间损耗的相对值(即超出损耗)表示,以避免天线频率依赖性的影响,而专注于纯粹的传播效果。出于这个目的,所有测量数据都仔细地通过视距(LoS)短距离(0.1~1.0 m)测量进行校准。
3.3.3.1 室内办公场景
该测量示例来自室内办公环境。基本布局如图3-15所示,一条走廊的两边都是办公室。走廊尽头有一个90度的转弯。接收(Rx)天线放置在两个位置,一个位于走廊,另一个位于相邻的办公室房间里。发射(Tx)天线放置在走廊和办公室内的不同位置。建筑物的外墙是砖墙,内墙是石膏板和玻璃。

图3-15 室内办公室测量场景的平面布局图
图3-16总结了传输损耗分析的主要结果。距离1 m处相对于自由空间功率的损耗L,以dB为单位,对应于频率2.44 GHz、5.8 GHz、14.8 GHz和58.68 GHz,包括LoS和NLoS两种不同场景。双参数指数模型:
L = 10n log(d) + L0 (3-25)
与所测量的损耗吻合,以dB为单位,其中d是发射机和接收机之间的距离,以米为单位。在3GPP中[2],相应模型也考虑了频率依赖性:
L3GPP = 38.3 log(d) – 15.1 + 4.9log f (3-26)
其中f是以GHz为单位的载波频率。最后两项对应于公式(3-25)中,与频率相关的项L0。从图中可以清楚地看出,测量数据与3GPP模型非常吻合。此外,很明显频率每增长十倍,传播损耗在自由空间损耗上额外再增加约5 dB。

图3-16 在2.44 GHz、5.8 GHz、14.8 GHz和58.68 GHz下室内办公环境中,传输损耗(超出自由空间损耗)与距离的曲线
3.3.3.2 室外到室内场景
图3-17为一个在城市环境下进行的室外到室内的多频测量,该测量在一个八层办公大楼中进行。发射机位于建筑物顶层的开放窗口,接收信号的测量是在跨过同一楼层内院的40个室内位置中的两个稍微偏移(30 cm)的测量点进行。建筑物顶层的外墙以金属覆盖。但是,窗户是纯玻璃的没有金属镀膜。

图3-17 室外到室内测量场景。室内Rx位置标为实心圆,Tx位置标为空心圆
在2.44~14.8 GHz频率之间,建筑物穿透损耗的范围从大约0 dB到 30 dB(如图3-18)。所有频率的穿透损耗的下限是相似的,即大约0 dB,而仅在58.68 GHz下最高损耗高达45 dB。最小损耗,即仅穿透外墙/窗户引起的损耗,范围为0~5 dB,最高值对应于5.8 GHz和58.68 GHz频段。这种对频率的非单调依赖性的效应,也许可以通过以下假设来解释:窗框中的三层玻璃受到多次反射的影响,引起了相长干扰或者相消干扰,导致了衰减随频率变化而周期性变化。随后的测量显示,对应于频率2.44 GHz、5.8 GHz、14.8 GHz和58.68 GHz的信号,窗户损耗分别约为2 dB、10 dB、0 dB和6 dB,这证实了这种效应并解释了测量的最小穿透损耗。而且很显然,对较高频率,穿透损耗的扩展大得多。部分原因可能是由于有些窗户有百叶窗,阻挡了较高频率的垂直极化波,而对于较低频率是透传的。损耗测量结果中的中位数与3GPP模型非常吻合[2]。应该指出3GPP模型没有考虑任何非单调频率效应。此外,随着频率的增加,测量损耗的扩展也增加,这也没有在3GPP模型中考虑。有关室外到室内传播建模的更多细节在3.4.1.1节的信道建模中讲解。
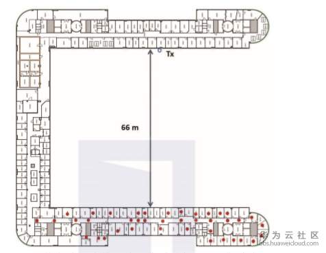
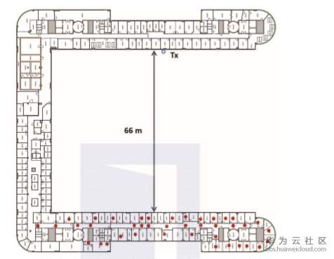
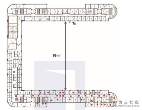
3.3.3.3 室外街道场景
室外街道测量主要在由现代办公建筑物组成的市内街区进行,街区大约长100 m,高25 m,如图3-20所示。测量是在街道峡谷中进行,涵盖LoS和NLoS场景,街道宽度大约为20 m,接收机和发射机天线都位于高于地面约1.5 m处。图3-19中给出了所有频段的超出损耗。在LoS场景,可以观察到高达5 dB(相对于自由空间)的多径增益,在所有频段上都可以获得类似增益。这受益于由于地面和外墙反射所增加的路径。在NLoS区域,即建筑物拐角后面,可以发现超出损耗大幅增加。这个损耗,远低于所预期的街拐角处由于刀口衍射效应产生的损耗,如图3-19所示。此外,频率依赖性远低于预期的衍射情况。这个结果说明在NLoS情况下,主要的传播机制一定与衍射(如镜面和物体或粗糙的外墙引起的漫射)不同。而且对于NLoS数据,在60 GHz补偿氧气吸收引起的损耗是可观的,高达4 dB,这超出了预期的根据链路距离所需要的补偿。但是这可以用重要的反射传播路径的长度远大于链路距离来解释。测量到与频率相关的超出损耗(约3 log f [dB])明显小于预期的刀口衍射(约10 log f [dB])。然而,它略高于3GPP中的信道模型[2]所给出的损耗值(1.3 log f [dB])。

图3-18 不同频率下测量室外到室内超过自由空间损耗的CDF
为了进一步了解传播机制,如图3-20所示,在60 GHz的两个测量位置进行了视线跟踪。第一个发射机位置(Tx1)处于NLoS场景,但非常接近LoS场景。第一个到达的路径通过衍射衰减。可以通过假设从沿街的建筑物外墙的镜面反射来重建最强路径。第二个发射机位置(Tx2)实际上在NLoS区域街道更低处。在拐角衍射路径的时延处,没有观察到噪声基底之上的信号。在传播距离远长于衍射路径长度处观察到第一簇弱路径。该簇可能由散射体或街角区域的粗糙表面引起。最强的峰值功率电平比功率时延分布的其余部分高约20 dB。一个看似合理的相应路径(与测量峰值的传播长度相匹配)是可以通过假设建筑外墙四个镜面的反射来重新构建的。这表明镜面路径对NLoS区域也很重要。然而,在大多数NLoS位置,未观察到这种明显的峰值。

图3-19 对图3-20中所示场景下Rx2的测量损耗和距离的关系。刀口衍射造成的损耗用虚线标出

图3-20 60 GHz下位于NLoS Tx1和Tx2处的功率时延分布及对应的重建传播路径
3.3.3.4 城市室外屋顶场景
在高频特别是毫米波范围内测量城市室外屋顶传播场景(宏蜂窝场景)的传输损耗非常具有挑战性,因为当使用实际的全向天线时,传输损耗显著增加。这个问题可能通过位于屋顶上方的BS使用定向天线有所缓解。但是,位于地面的UE,由于混入在杂乱的城市,预期在仰角和方位角上的角度扩展都较大。通过加***射功率来解决问题的方式在实际应用中并不适合毫米波高频。更实用的解决方案是使用非常高性能的LNA。此外,对于CW测量,通过多普勒滤波可以实现非常高的噪声抑制。该技术已用于两个独立的多频测量中,分别在奥尔堡[27]和东京[23]。在奥尔堡的测量中没有观测到频率依赖性。然而,这可能是受最高频率28 GHz处的有限动态范围的影响。在东京的测量中,测量灵敏度在较高频率下更好,允许测量高达67 GHz的频段。
3GPP城市宏蜂窝传输损耗建模[2]主要基于奥尔堡测量,与自由空间有关,由下式给出:
LUMa = 19.08 log(d) – 18.9 [dB] (3-27)
其中d是距离,以m为单位,f是频率,以GHz为单位。ITU-R提供的相应模型见参考文献[12],以东京的测量为基础,由下式给出:
LUMa = 23.9 log(d) – 38.7 + 3.0 log f [dB] (3-28)
除了ITU-R模型是与频率相关而3GPP模型不是之外,这两个模型是相似的。城市宏蜂窝场景下,路径损耗通常是频率依赖的还是非频率依赖的还需要进一步考察。
- 点赞
- 收藏
- 关注作者
评论(0)